Raheja SCO plots Gurgaon offers commercial plots in Gurgaon for shop cum office space in Sec-83 & 84 Gurgaon.
Raheja Market Sco Plots are based on unique concept that features commercial low-rise development built on Ground+6 floors. Located in close proximity to NH 8 and 150 m wide Dwarka Expressway, Raheja SCO Plots face largest commercial belt in Gurgaon.
Raheja SCO Plots Gurgaon is laced with various amenities such as Gymnasium, Clubs, banks, Speciality Cuisine Restaurants (Indian, Chinese and Italian, etc.), 24/7 grocery store, Book Shops etc accessible within the complex.
Buying retail space at Raheja SCO Plots will help you boost business prospects as the commercial development will cater to approximately 5 lakh people that are anticipated to shift in the next 3-5 years. Today, almost 50,000 families are living within a 5 km radius. Ideal for today’s business landscape, the project offers adequate amenities such as ample car parking facilities and dedicated services areas for retailers. This will enable business owners to expand their business holistically and generate maximum profit as possible.
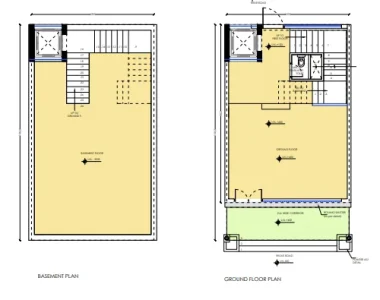
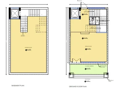
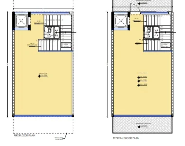
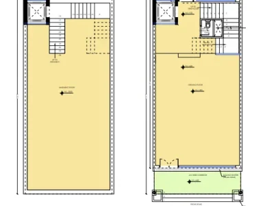
Raheja SCO Plots are Commercial plots in Gurgaon that are available in different configurations ranging from 50 sq mtrs to 140 sq mtrs. You can expect good amount of footfall here as the project is located amidst densely populated residential neighbourhood. At Rahega Market SCO plots have double height shops that come with uniform standard facdae and corridor. There are well planned pedestrian pathways and landscaped open areas with open car parking for convenient shopping. If you plan to buy retail space in Gurgaon sector 83 and 84, then you should choose Raheja SCO plots for profitable business endeavours. Strategically planned front facing shops at Raheja Market SCO plots are well designed with proper entry and exit.















