Signature Global Signum 37D 3 is a commercial complex that is spread over 9.72 Acres of semi integrated township in sector 37D of Gurgaon. The project is floated by renowned Signature global group that is acknowledged for building marvelous residential and commercial projects. If you are finding affordable Commercial Shop in Gurgaon, then you must consider buying one at Signature Global Signum 37D 3 Gurgaon. This commercial project is located close to proposed metro station and offers trouble-free access to Dwarka Expressway, which is only 2kms away from the development.
Undeniably, the commercial project Signature Global Signum 37 D 3 is located just 4 Km away from the Hero Honda Chowk & 6 Km from the Gurgaon Sadar. You can easily reach to any part of the Gurgaon from here. There are various transportation modes available from this location. Buying shop at Signature Global Signum 37D 3 Sector 37d Gurgaon would mean present amidst the neighborhood of leading residential projects including Apex our homes, Taksila Height, Imperia Esfera, to mention a few.
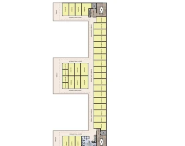
Signature Global Signum 37 D 3, new project of Signature Global Group has 2 storied buildings comprising 151 shops with the sizes ranging from 126 sq. feet to 581 sq. feet. Signature Global Signum 37D 3 is only HUDA commercial complex which is located in sector 37D Gurgaon. The best part about buying shop at Signature Global Signum 37 D 3 is that each block & each shop is designed smartly to cater to the special requirements of single or multi-tenant necessities. There are array of amenities you get with bying shop at Signum 37D including ATM, Power back-up, Fire fighting system, 24 hours Security etc and more. Apart from these special facilities, you become eligible to receive Uninterrupted Power Supply, ample car parking, round the clock security, easy payment plan option, Green area and more. the size og the shops range from from 126 sq. feet to 581 sq. feet.










