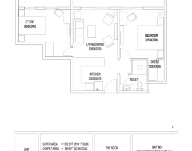
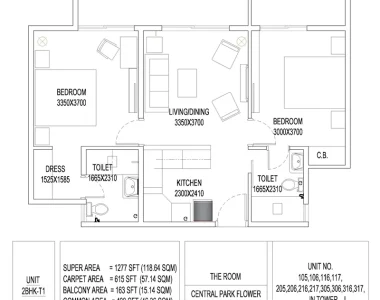
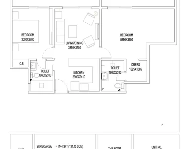
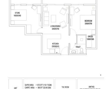
To grow, prosper, relax and rejuvenate, life needs space. At Flower Valley Central Park 3 The Room in Sector 32-33 on Sohna Road, Gurgaon, Gurugram life’s a combination of comfort, convenience and dreams. An epitome of architectural genius, the township offers 1 BHK & 2 BHK apartments of sizes 77.76 sq. mtrs and 110.37 sq. mtrs respectively, and encompasses natural surroundings that provide you with the calm and tranquility you always dreamed of.
Location :
Strategically located in the heart of the bustling township of Sohna, Central Park 3 The Room sits on one of the prime zones of south of Gurgaon, Gurugram. At a drive of few minutes from the Indira Gandhi International Airport, the luxurious township stands at a close distance from NH–8, proposed metro line and major catchments of Delhi and Gurgaon.
Quality Certifications:
Central Park offers 6 Certifications at the time of possession. These certifications are awarded by third party agencies like JLL, DEMA who audit, verify and then certify the assets. The certifications are as follows:
- Super Area & Escalation: What we commit in the Apartment Buyer Agreement is what we guarantee.
- Specifications as per Apartment Buyer Agreement: The specifications we promise, is what we deliver without a compromise.
- Certificate for Design & Safety UPVC Glazing: The Design & Safety Certificate certifies that that UPVC glazing have been designed as per provisions prescribed in the National Building Code & Indian. Standard Code IS: 875 (Part 3) for wind pressure & safety from the earthquake of the intensity anticipated under Zone IV
- Design & Safety Certificate for Structural Stability.
- Safety of Mechanical, Electrical & Plumbing.
- Seepage Warranty.










